検索

有限会社ナスカ一級建築士事務所
162-0052 東京都新宿区戸山3-15-1 日本駐車ビル4F
T 03-5272-4808 F 03-5272-4021

水の家MIZU NO IE -Izu Diving Retreat-

静岡県伊東市池614-188

設計 古谷誠章+NASCA
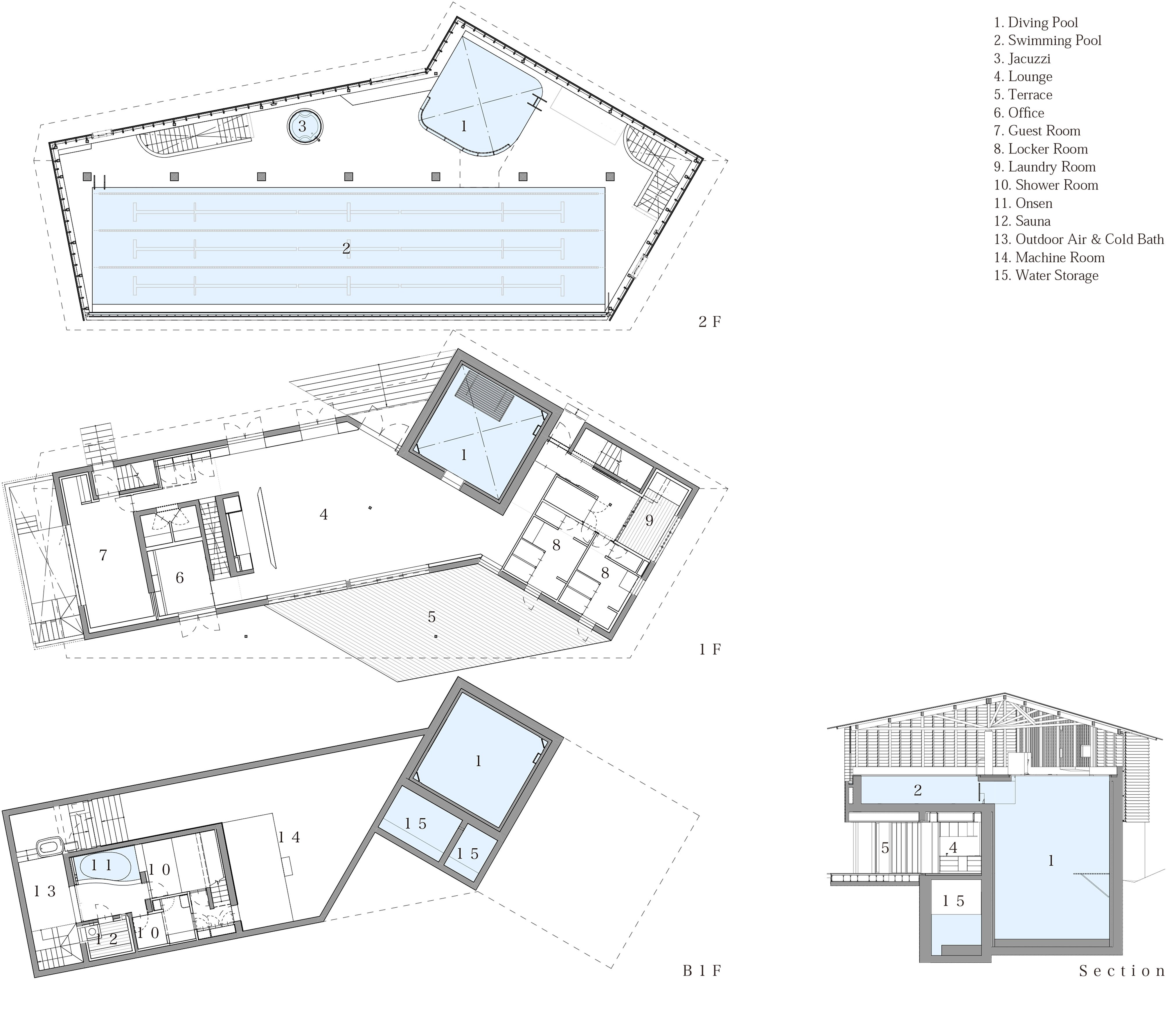
用途 水泳場・公衆浴場・宿泊施設・飲食店
構造 RC+W
規模 地下1/地上2
敷地 1,479.38㎡
延床 659.03㎡
竣工 2024.11

人は裸で産まれてきて、衣服をまとい、家をまとい、都市や自然をまとう。敷地は富士箱根伊豆国立公園内、大室山を臨む伊豆高原の、手付かずの自然が残されてきた一角である。訪れる人が五感を解放して、水をまとい、場所の空気をまとい、周囲の緑をまとい、土地の風土をまとい、心や身体が直に環境に包まれる場をつくろうと考えた。
国立公園の豊かな自然に溶けこませるため、自然との親和性が高い、木とコンクリートで構成した。面積の制限や強固な岩盤がある敷地において、長さ25mのスイミングプールのみならず、水深8mのダイビングプールを求められたが、プールを2階にまとめることで効率よく配置し、かつダイビングプールによる掘削を最小限に抑えている。プールの水400tを持ち上げるため基礎から2階までは壁式RC造とし、小屋は木造とした。25mプールに沿ってRCの列柱を配し、”やじろべえ”のように梁間方向へ梁を渡すことにより、プールの南面は25mにわたる無柱の大開口を実現した。その他の壁面は一定の隙間のある杉板下見張りとし、外からの視線を遮りながらも、光と風を導く環境装置とした。プールの無柱大開口側をインフィニティエッジとしたことで、手付かずの自然を取り込み、森の中での遊泳体験の提供に成功している。

撮影 淺川 敏